Residential
PROJECT

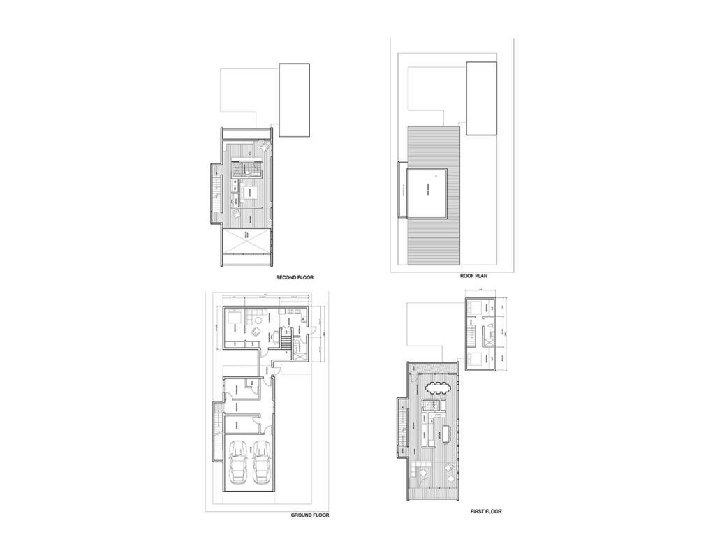
BUFFALO HOUSE

PROJECT: BUFFALO HOUSE
LOCATION: Buffalo, NY
CLIENT: Private CLIENT:
YEAR: 2018
TYPE: residential
PHASE: design
SIZE: 1,800 sf
TEAM: as +Farm

The Buffalo House took an experimental approach to combining prefab systems and custom design.  We originally proposed a system of SIPS panels that would form the majority of the exterior walls.  This was combined with a similar panelized wood flooring system.  The window system also took a standardized approach, using off the shelf products that fit into our design.  The exterior cladding was a rain screen application of an inexpensive industrial corrugated metal product that also became the roof. This helped reduce cost, material, waste, construction time, and emissions.   

 

The savings achieved by creating an efficient envelope and structural system allowed us to focus and spend more time and resources on customizing the interior to meet the client’s specific needs.  The internal layout was developed through extensive dialog and meetings with the client.  We provided iterative design options that both gave the client multiple options while pushing the design forward.  The fast paced design led to a constant exchange of ideas that manifested in a unique space that neither us or client would have imagined at the start of the project, but that went beyond what either of us had anticipated.