Office
PROJECT
Force Majeur
LOCATION: Brooklyn, NY
CLIENT: Force Majeur
YEAR: 2015
TYPE: Office Space, Interior
PHASE: Built
SIZE: 15,000 sf
TEAM: at BKD

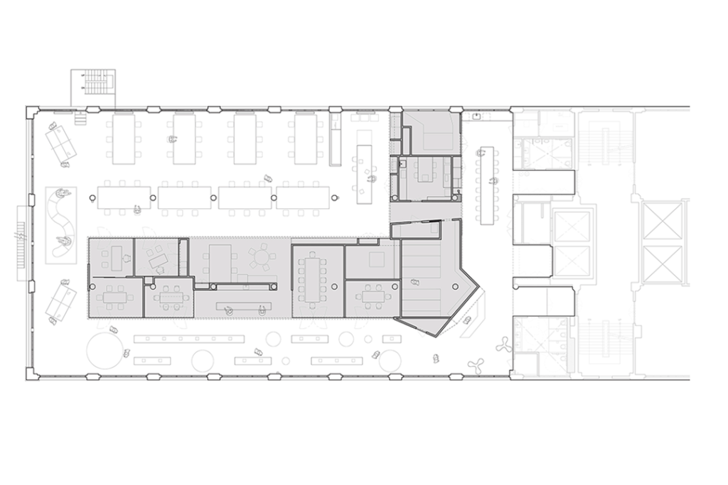
In a converted warehouse space in Industry City, Brooklyn, the design for this space took into account the client’s need to have both a gallery space and offices. The main element is a glass and wood clad box in the center that houses individual offices, meeting rooms, and stepped seating dubbed the “agora”. The element divides the gallery from the offices. All the services, including mechanical ducts, bathrooms, and storage are also incorporated into the central volume, leaving the other spaces free to be used as required.