Retail
PROJECT
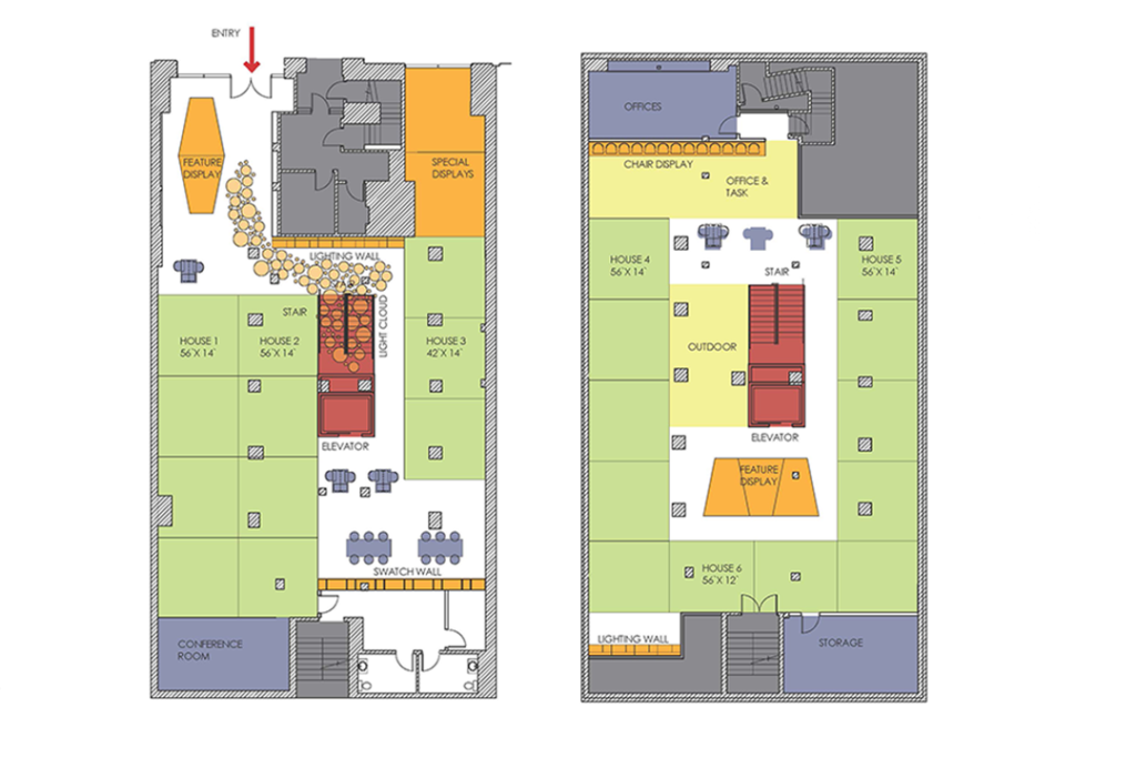
Design Within Reach Seattle
LOCATION: Seattle, WA
CLIENT: Design Within Reach
YEAR: 2013
TYPE: Retail, Interior
PHASE: Built
SIZE: 8,500 sf
TEAM: at BKD

LOCATION: Seattle, WA
CLIENT: Design Within Reach
YEAR: 2013
TYPE: Retail, Interior
PHASE: Built
SIZE: 8,500 sf
TEAM: at BKD