Residential
PROJECT

Townhouse

LOCATION: Brookyln, NY
CLIENT: Private CLIENT:
YEAR: 2014
TYPE: Residential, Renovation
PHASE: Design
SIZE: 1,200 sf
TEAM: at BKD

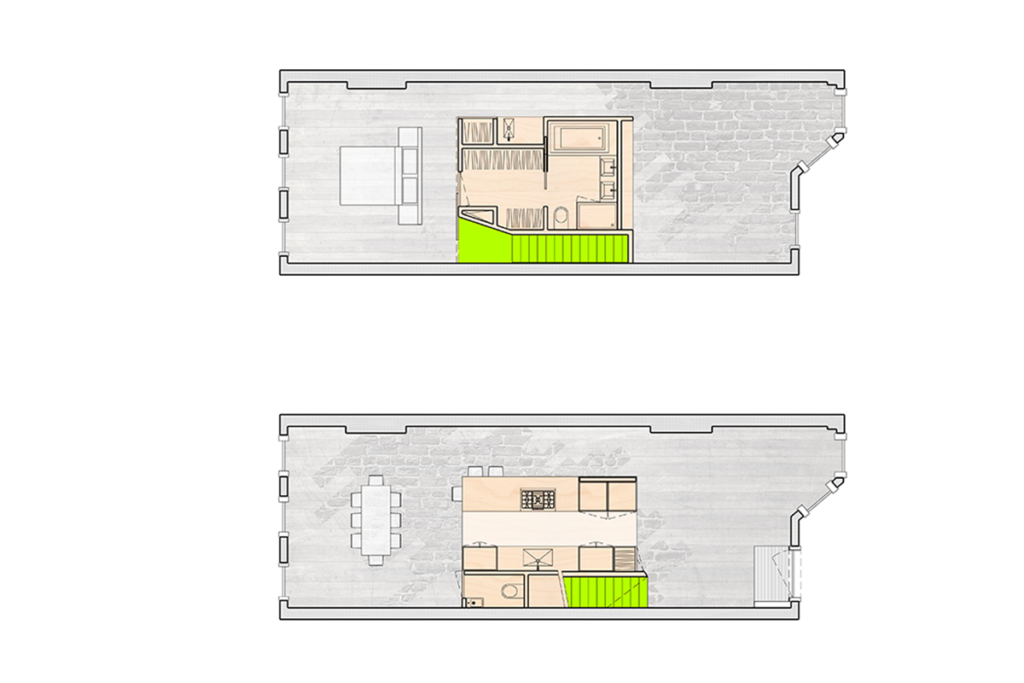
This project was a gut renovation of a traditional Brooklyn townhouse. The traditional exterior (which came inside through window & door moldings on the front) was maintained and given its due respect.  The interior was contemporary, minimal, and sculptural. It set itself apart, both physically and spatially from the traditional exterior elements.  And it was in this space between that the program of the house developed. 

 

At the rear of the building this contemporary space spilled out into the garden and terrace.  Here the traditional windows and frames were replaced with single openings and minimal frames and the brick facade was whitewashed to create an extension on the contemporary interior.