Residential
PROJECT

TUNARI RESIDENTIAL TOWER

LOCATION: Bucharest, Romania
CLIENT: Private Developer
YEAR: 2007
TYPE: Mixed-use
PHASE: Design
SIZE: 12,700 sm
TEAM: at MRA

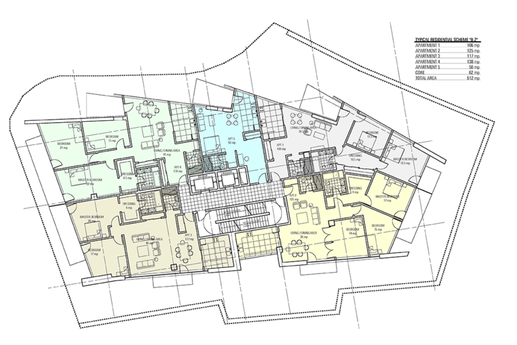
The Tunari building was a high-rise residential building in the center of Bucharest. The residential units were stacked with each having its own private balcony that looked South, giving each apartment a good daylighting and well ventilating. 

 

 

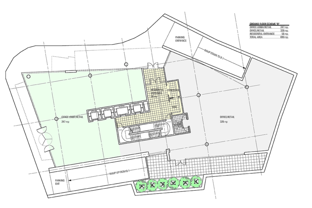
This project was located in a low rise residential area of urban fabric of Bucharest, which had not been rezoned since communism fell and remained low with the maximum of three to four stories in most areas.. Instead, it was a common practice that any large building would be processed through a variance request that were often granted. This created a new ad hoc urbanism of Bucharest. The developer of the Tunari Tower went through this process. We did urban studies to show how the height of the new building would impact the surrounding areas, including view corridors to major public monuments in the city.. So this project was interesting not only as a residential development but as a test case to understand how this type of structure could be built into the city.