Residential
PROJECT
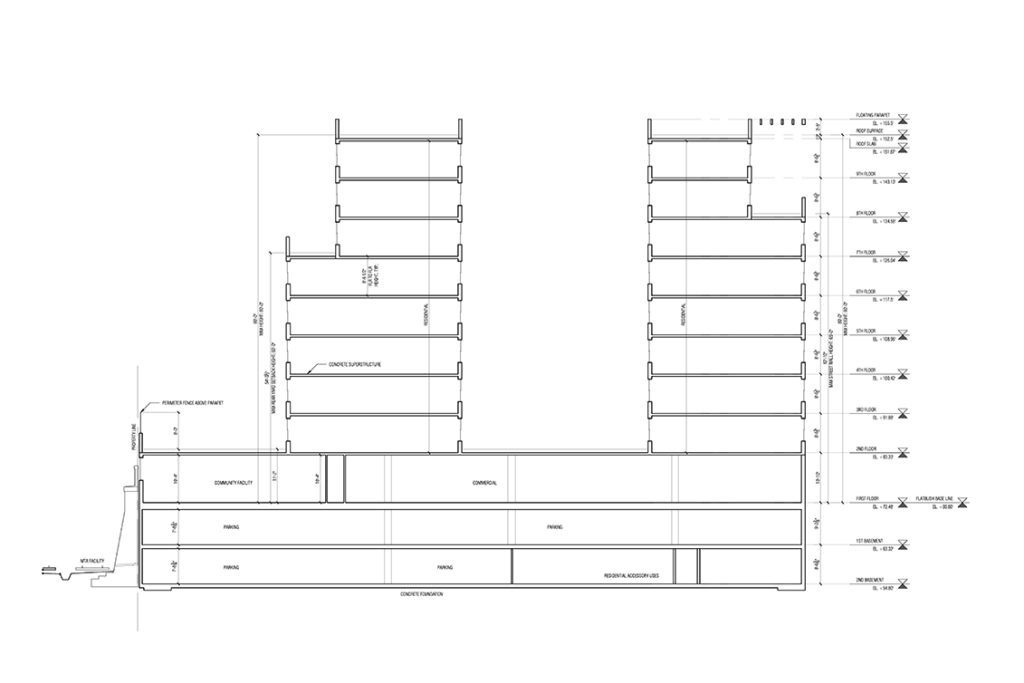
LINCOLN APARTMENTS
LOCATION: Brooklyn, NY
CLIENT: Private Developer
YEAR: 2012-2014
TYPE: Residential
PHASE: Built
SIZE: 188,000 SF
TEAM: at MR

The Lincoln Apartment Buildings are 2 buildings containing 133 apartments. The buildings were partially financed by the HPB and this required half of the apartments to be affordable rate housing. Rather than stacking the same unit on each floor the design alternates two different layouts. The affordable housing and market rate apartments have the same layouts, with the only difference being the level finish materials.
The challenges to maximize the number of apartments and get city approvals for this project created additional parameters. Not only was this building subject to typical DOB and zoning regulations, HDP funding was dependent on meeting HBD apartment guidelines. The building is also adjacent to a subway station and sunken subway line, requiring MTA sign off. DOT regulations affected where the parking ramps and curb cuts could be in relation to intersections and the subway stop. Managing all these requirements was not only a logistical leap to keep the project on time, but the overall design was affected by each of these.