Retail
PROJECT
Design Within Reach – Additional Locations
LOCATION: Various
CLIENT: Design Within Reach
YEAR: 2012-2014
TYPE: Retail, Interior
PHASE: Built
SIZE: Varies
TEAM: at BKD

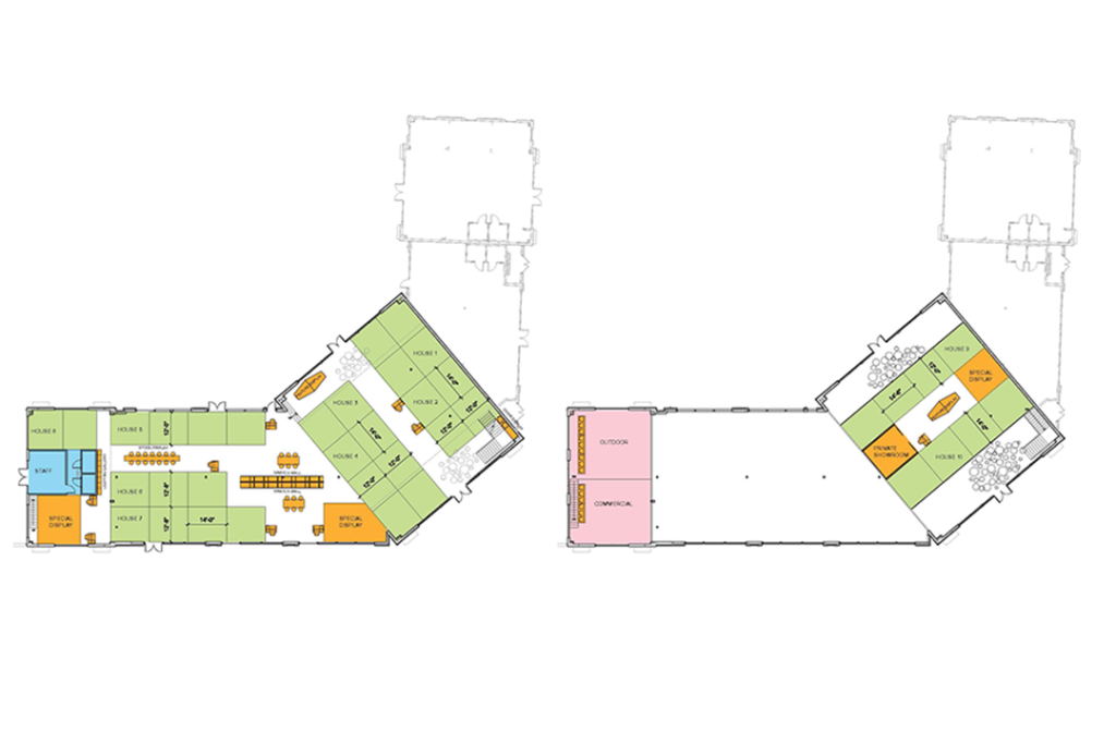
Working on several Design Within Reach stores across the country allowed for an iterative approach. Each successive store built off the successes and learned from the shortcomings of previous designs. Size, location and situation of each store played a key role in how the design elements were distributed.