Interiors
PROJECT

Mark Twain Lobby

LOCATION: New York, NY
CLIENT: Building Co-op
YEAR: 2015
TYPE: Residential, Lobby, Interior
PHASE: Built
SIZE: 800sf
TEAM: at BKD

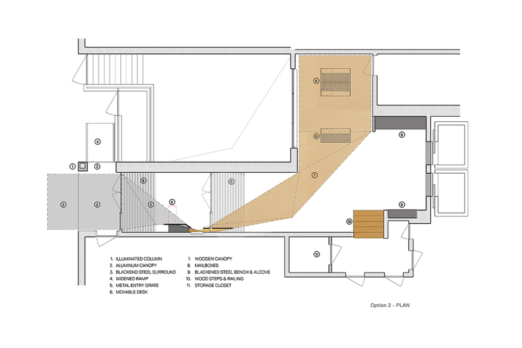
This building located at the edge of the Greenwich Village landmark district required a new lobby design that would match the tenants contemporary design aesthetic, while maintaining a more subdued exterior to meet preservation guidelines for the neighborhood.

 

 

We proposed a simple metal awning at the exterior which wraps down the wall on the interior and moves back into the elevator lobby. At the elevators the colder metal is contrasted with a warmer wood cladding at the mailboxes. The floor is a black porcelain tile that is continued up the elevator wall and at the exterior.