Residential
PROJECT

Algers

LOCATION: Undisclosed
CLIENT: Private
YEAR: 2000
TYPE: House
PHASE: Design
SIZE: 3,500 sf
TEAM: at DVA

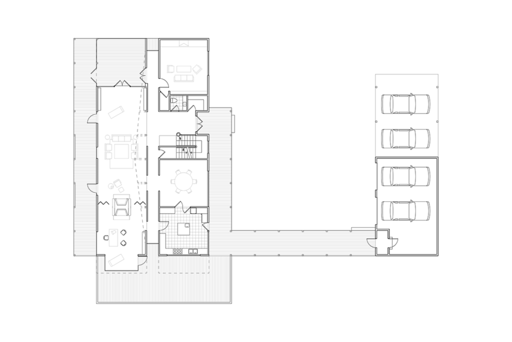
The Algers residence design started with the garage.  The garage was an existing barn that we adapted for the new house.  This became the physical and typological anchor for the project.  The main house used the proportions, orientation, and materiality of the garage as its design parameters.  Inside the house follows the 2 linear volumes.  One volume contains the programmatic elements of the house; kitchen, bathrooms, and bedrooms.  The second volume is a double height space for the living and dining rooms. 

 

The proposal continues to play with traditional elements in the design of the dormers.  These are given a more contemporary look, cutting through the height of the facade to create a vertical rhythm that breaks up the long volumes and opens windows into the full height of the living space. The house is sited at the edge of the woods on the property, this gives views of the opening from inside, while maintaining an almost hidden aspect to the house, which just peaks out from the trees.