Commercial
PROJECT
Steakhouse
LOCATION: Bryn Mawr, PA
CLIENT: Investor
YEAR: 2021
TYPE: Restaurant, Interior
PHASE: Built
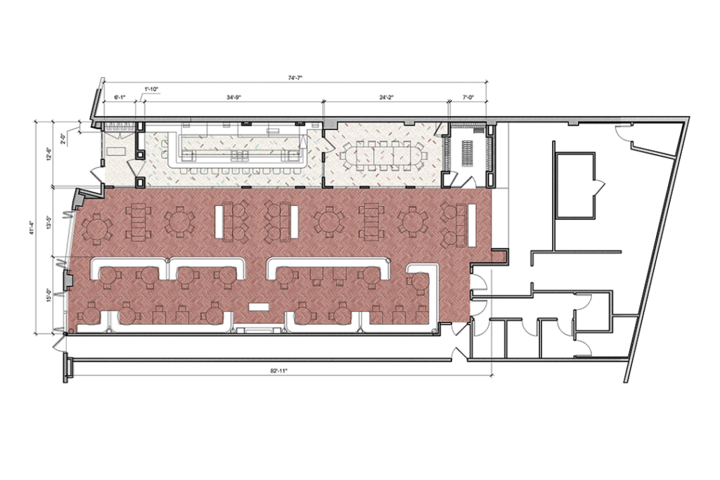
SIZE: 3,500 sf
TEAM: with BKD

Cooking is an art. Some would say eating is an art. Art is an art. This project brought all these arts together, creating an environment where the atmosphere matches the food. Using venetian plastered arches, richly upholster wood banquettes, and custom chairs and tables, the design indulges the visual and tactile flavors.
The space is divided into three zones. The central street, where the individual dining tables are located; the enclosed archways containing the entry, bar, private dining, and wine cellar, and the banquettes. The metaphor of the street with an arched facade on one side and open park with beautiful views (in the form of exquisite artworks) on the other is brought inside a formerly industrial space that vanishes as the smells, tastes, sights, and sounds of the steakhouse take over.